栃木県小山市に大和ハウス工業の商業施設「小山粟宮複合商業施設」が2026年秋開業!
食品スーパーマーケットを中心に、複数店舗が出店予定!
そんな、小山粟宮複合商業施設についてテナントや求人情報とともにみていきます!

| 2026年3月4日 公開 |
小山粟宮複合商業施設の概要は?
小山粟宮複合商業施設の概要をみていきます。
| 名称 | 小山粟宮複合商業施設 小山粟宮複合計画(仮称) |
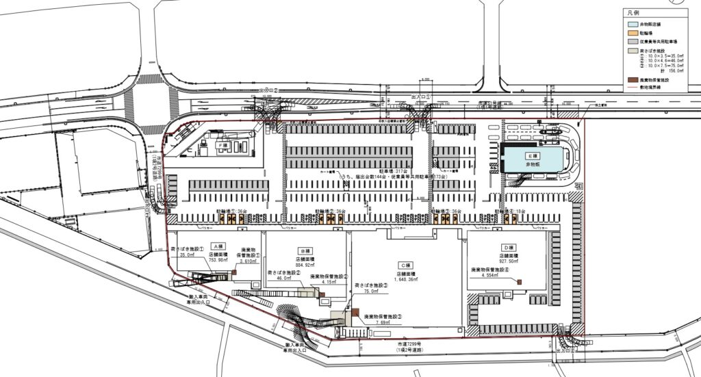
| 所在地 | 栃木県小山市 粟宮新都心第一土地区画整理事業33街区 |
| 敷地面積 | 約26,182㎡ |
| 延床面積 | 5,691㎡ |
| 店舗面積 | 4,215㎡ |
| 駐車台数 | 144台 |
| 構造 | 平屋建て(5棟) |
| 店舗数 | 不明 |
| 営業時間 | 不明 |
アクロスプラザの可能性も?
小山粟宮複合商業施設は大和ハウス工業が開発する商業施設ということで、商業施設の名称(ブランド)はアクロスプラザの可能性もあります。
アクロスプラザとは?

アクロスプラザは大和ハウスグループの「大和ハウスリアルティマネジメント株式会社」が展開する商業施設です。
コンセプトは”コミュニケーションタウンセンター”。
地域の人々のかかわりを大切にした地元密着型の商業施設を全国に展開しています。
最大の特徴は、駐車場を囲むように独立した店舗が並ぶ「オープンモール形式」の採用です。
巨大モールのように歩き回る必要がなく、「車から降りてすぐ目的の店に入れる」という圧倒的なタイパの良さが、車社会のライフスタイルに完璧にマッチしています。
テナントも非日常のレジャーではなく、スーパーを核にドラッグストアや100円ショップなど「週に何度も通う生活防衛店舗」で固めているのが強みです。
小山粟宮複合商業施設のフロアは?
小山粟宮複合商業施設のフロアについてみていきます。

建物は6棟建設されます。
駐車場を挟んで道路に対して奥側には物販棟が4棟建てられます。
道路に対して手前側には飲食店とガソリンスタンドが設けられますね。
飲食店は図面を見る限り、ドライブスルー併設かつ、2レーン設けられるので、あくまで出店ウォッチの見解ですが、マクドナルドの可能性が高いと考えております。
小山粟宮複合商業施設のテナントは?
2026年4月2日現在、求人誌等から一部テナントが明らかになりました!(アンダーラインは今回明らかになったテナントです。)
| 名称 | ジャンル | 備考 |
| (名称未定) | 食品スーパーマーケット | |
| ドラッグコスモス | ドラッグストア | |
| (名称未定) | 日用品 | |
| (名称未定) | リユースショップ | |
| (名称未定) | 飲食店 | |
| (名称未定) | ガソリンスタンド |
以上、6店舗が明らかになりました!
また明らかになり次第更新します。
小山粟宮複合商業施設の求人情報をチェック!
小山粟宮複合商業施設の求人情報についてみていきます!
以下の求人サイトはクリックだけで簡単検索できます♪
小山市の求人情報もチェック!
小山市の求人情報もクリックだけで簡単検索できます♪

ポイ活始めるなら今!気軽に稼ぎたい方におすすめ!
国内最大手ポイントサイト「moppy(モッピー)」でスキマ時間に月1万円以上稼ごう!

小山粟宮複合商業施設の場所は?(地図・アクセス)
場所は小山環状線の南側、Audi小山の隣接地です。
周辺では粟宮新都心第一土地区画整理事業が行われています。
小山粟宮複合商業施設の開業日は?
2026年秋開業予定です!
アークタウン宇都宮についてはこちら!

フレスポうつのみや市場についてはこちら!

アクロスプラザ宇都宮インターパークについてはこちら!

生鮮市場TOP合戦場店についてはこちら!





