東京都江東区有明の佐川急便跡地に大和ハウス工業の複合再開発プロジェクト「(仮称)江東区有明1丁目計画」が2026年春開業!
マンション棟に隣接し、商業施設ができ、商業施設には食品スーパーマーケットをはじめ、様々なジャンルの複数店舗が出店予定!
そんな、(仮称)江東区有明1丁目計画について、テナントや開業日について見ていきましょう!
| 2023年11月25日 公開 | 2024年8月5日 イメージ図更新 |
| 2025年1月31日 イメージ図・マンション情報更新 | 2025年10月9日 テナント情報1店舗更新 |
| 2025年11月6日 テナント情報5店舗更新 | 2025年11月10日 フロア情報更新 |
| 2025年12月9日 テナント情報1店舗更新 |
江東区有明1丁目計画の外観は?
(仮称)江東区有明1丁目計画の外観は以下の通りです。

ネイバータウンモールと書いてありますが、正式名称ではないでしょう。
地上3階建てで、複数テナントが入ることが分かります。
2023年時点の計画は以下の通りです。デザインも若干変更されたのだと思われます。
大和ハウスの有明一丁目計画
早速、現調して来ました♪
まずは、商業棟が先行するようです
2024年3月着工予定
どんなお店が入るのか今から楽しみですね😊 pic.twitter.com/aT9YdSmaV4— 東京有明 (@tokyo_ariake) September 28, 2023
しかしながら、X(旧Twitter)には現地に掲出されている建築計画のお知らせに商業施設の外観も公開されていたようです。
それを基に見て見ると、地上4階建てで、外壁はガラス張り、店舗の看板区画を見ると8区画あるようです。
江東区有明1丁目計画の概要
江東区有明1丁目計画の概要は以下の通りです。
| 名称 | 江東区有明1丁目計画(商業棟) |
| 所在地 | 東京都江東区有明1-104-4の一部 |
| 敷地面積 | 6,418㎡ |
| 延床面積 | 14,732㎡ |
| 店舗面積 | 4,244㎡ |
| 店舗数 | 不明 |
| 高さ | 19.9m |
| 建物階数 | 地上4階 |
| 用途 | 商業施設 |
| 駐車場 | 167台 |
| 駐輪場 | 245台 |
| 営業時間 | 9時~24時 |
ベルクが江東区内 初出店!

ベルクが江東区内初出店となる、有明店を出店します!
ベルクは埼玉県鶴ヶ島市に本社を置き、関東地方で約120店舗を展開する食品スーパーマーケットです。
今までの最寄店舗は、ベルク江戸川臨海店が最寄り店舗でした。
ベルクの強みはどの店舗もレイアウトが同じであること。業界的には標準化と呼びますが、どの店舗も決まったサイズ、決まったレイアウトで展開することで、売り場が常に最適・最速に保たれているそうです。
つまり、ベルクが開業して10年後、20年後もその時代に合った最適な売り場が保たれるということなので、開業して長く愛されれば愛されるほど、ベルクが近くにあってよかったとなることでしょう。
また、声優の店内放送や、レジ袋が無料であることなどユニークな試みも実施しています。
隣接して大和ハウスの賃貸マンション「ロイヤルパークス有明」が建設へ


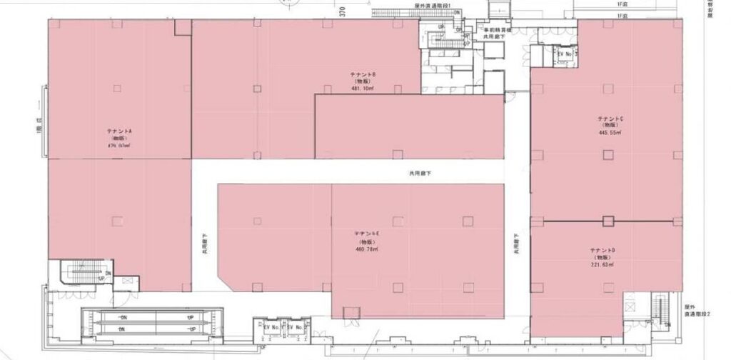
江東区有明1丁目計画のフロアは?
江東区有明1丁目計画のフロアについて見ていきます。
2階

2階には、
- 物販店舗(5店舗)
が設けられます。
のことを指します。
3階

3階には、
- ホテル
- クリニック(6店舗)
が設けられます。
全体のフロア構成
現時点では、以下のようなフロア構成になる模様です。
| 4階 | 駐車場 |
| 3階 | インターナショナルスクール、クリニックモール |
| 2階 | テナント区画(5区画) |
| 1階 | 食品スーパーマーケット |
江東区有明1丁目計画のテナントは?
2025年12月9日現在、求人誌等から一部テナントが明らかになりました!(アンダーラインは今回明らかになったテナントです。)
| 名称 | ジャンル | 備考 |
| Villa Mom | 産後ケアホテル | 2026年6月オープン! 公式HP |
| ベルク有明店 | スーパーマーケット | |
| (名称不明) | クリニックモール | |
| (名称不明) | 100円ショップ | |
| (名称不明) | ドラッグストア | |
| (名称不明) | インターナショナルスクール |
以上6店舗が明らかになりました!
江東区の求人情報もチェック
江東区の求人情報もクリックだけで簡単検索できます。

ポイ活始めるなら今!気軽に稼ぎたい方におすすめ!
国内最大手ポイントサイト「moppy(モッピー)」でスキマ時間に月1万円以上稼ごう!

江東区有明1丁目計画の開業日は?
2026年2月完成予定です
このため、2026年春(3月頃)開業となるのではないでしょうか。
2024年3月より着工を予定しています。
江東区有明1丁目計画の地図(場所・アクセス)
場所は有明エリアの元々佐川急便があった場所です。
隣接して、トヨタモビリティ東京があります。
東京ドリームパークについてはこちら!

豊洲市場 千客万来施設についてはこちら!








