富山県高岡市に吉本土地建物の複合商業施設「井口本江ショッピングモール」が2025年春開業予定!
高岡環状線沿いに富山県初出店のラ・ムーを中心とした新たな複合商業ゾーンが誕生します!
テナントは?アクセスは?そういった最新情報や求人情報も含め、井口本江ショッピングモールがどのような商業施設になるのか、見ていきます!
| 2023年10月9日 公開 | 2024年7月29日 開業日情報更新・テナント情報1店舗追加 |
| 2024年9月16日 開業日情報更新 | 2025年9月24日 テナント情報1店舗追加 |
井口本江ショッピングモールの概要
井口本江ショッピングモールの概要は以下の通りです。
| 名称 | 井口本江ショッピングモール |
| 所在地 | 富山県高岡市井口本江 |
| 敷地面積 | 37,900㎡ |
| 店舗面積 | 未定 |
| 駐車台数 | 650台 |
| 店舗数 | 10店舗程度 |
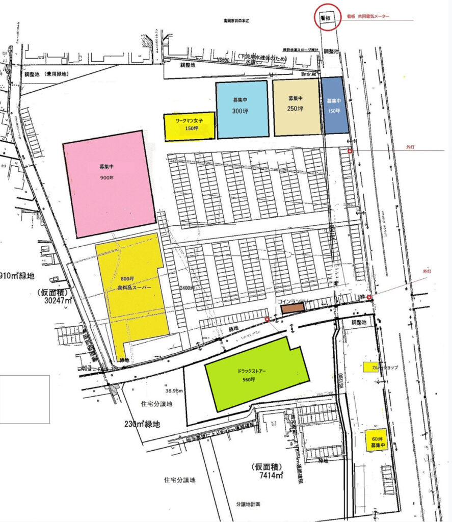
井口本江ショッピングモールのフロアは?
井口本江ショッピングモールのフロアについて見ていきます。

高岡環状線沿いに、駐車場を中心にコの字型で店舗が並ぶ計画です。
駐車場は約650台設けられ、広々としますね。
井口本江ショッピングモールのテナントは?
2025年9月24日現在、求人誌等から一部テナントが明らかになっています!(アンダーラインは今回明らかになった店舗です)
| 名称 | ジャンル | 備考 |
| ラ・ムー | 食品スーパーマーケット | |
| ドラッグストア コスモス | ドラッグストア | |
| ワークマン女子 | アパレル・アウトドア | |
| A5和牛と釜炊き御飯 金どこ | 焼肉店 | |
| (名称未定) | コインランドリー |
以上、5店舗が明らかになりました!
全部で10店舗ほどが出店予定ですが、2023年10月現在、募集区画が5区画あります。
本屋や100円ショップ、服飾雑貨店などを想定しているようで、順次開業していく感じかもしれません。
また明らかになり次第更新します。
ラ・ムーが富山県初出店!
食品スーパーマーケットのラ・ムーが富山県に初出店します!
ラ・ムーは岡山県発祥で、2023年現在は石川県から九州地方まで出店しています。
特徴は「激安スーパー」「激安ディスカウントストア」と言われるように、周辺のスーパーマーケットに比べて安さが売りのお店となっています。
中でも惣菜はかなり安くなっており、テイクアウトのたこ焼きはなんと100円で購入できるため、「100円たこ焼き」として有名です。
井口本江ショッピングモールの求人情報は?
井口本江ショッピングモールの求人情報についてみていきます!
以下の求人サイトはクリックだけで簡単検索できます♪
井口本江ショッピングモールの求人情報はこちら!(タウンワーク)
井口本江ショッピングモールの求人情報はこちら!(フロムエー)
高岡市の求人情報もチェック
高岡市の求人情報もクリックだけで簡単検索できます。

ポイ活始めるなら今!気軽に稼ぎたい方におすすめ!
国内最大手ポイントサイト「moppy(モッピー)」でスキマ時間に月1万円以上稼ごう!

井口本江ショッピングモールの地図(場所・アクセス)
高岡環状線沿いです。
向かいには大阪屋ショップ出来田店があり、競合が想定されますね。
井口本江ショッピングモールの開業日は?
2025年春に開業予定です!
2023年8月の各種報道によると2024年6月オープン予定とのことでしたが、建築資材の高騰などの影響でオープンが来年1月以降にずれ込み、更には春頃の予定との発表がありました。2024年7月現在も基礎工事はまだ始まっていないようです。
富山市公設地方卸売市場再整備 複合商業施設についてはこちら!

中央通りD北地区市街地再開発事業についてはこちら!

富山駅西側の複合商業施設についてはこちら!

アイタウン射水についてはこちら!

A5和牛と釜炊き御飯 金どこについてはこちら!







