東京都港区虎ノ門に再開発ビル「TORANOGATE(トラノゲート)」が2027年10月竣工!
「INCLUSIVE GATE」をコンセプトに、オフィスやカンファレンス、商業施設などから構成され、商業施設には様々なジャンルの複数店舗が出店予定!
銀座線虎ノ門駅に直結する再開発事業で期待が高まっています!
そんな、虎ノ門のTORANOGATE(トラノゲート)について、テナントや開業日について見ていきましょう!
| 2022年6月26日 公開 | 2023年6月7日 開業日情報更新 |
| 2023年11月11日 イメージ図更新 | 2024年2月17日 商業施設情報更新 |
| 2025年2月23日 名称更新 | 2026年1月11日 商業施設フロア情報更新 |
TORANOGATE(トラノゲート)の外観は?
TORANOGATE(トラノゲート)の外観は以下の通りです。

全面ガラス張り、カーテンウォールで構成されるのだと思われますが、ブロック状に区切られたデザインが特徴的ですね。

低層階から高層階に上がるにつれてブロックが大きくなっていくようなデザインです。
建築デザインは小堀哲夫氏が率いる、小堀哲夫建築設計事務所。
小堀哲夫氏は岐阜県出身で、代表作に「ROKI Global Innovation Center –ROGIC-」「NICCA INNOVATION CENTER」などがあります。
そして、帝国劇場の建て替えで新生・帝国劇場を担当する建築家としても注目されています。

TORANOGATE(トラノゲート)の概要
TORANOGATE(トラノゲート)の概要は以下の通りです。
| 名称 | 虎ノ門一丁目東地区第一種市街地再開発事業 |
| 所在地 | 東京都港区虎ノ門1丁目4番ほか |
| 敷地面積 | 6,397㎡ |
| 延床面積 | 119,886㎡ |
| 建物構造 | 地上29階、地下4階建て |
| 高さ | 171.31m |
| 用途 | 事務所、商業、業務支援等 |
| 事業者 |
|
TORANOGATE(トラノゲート)はどのような施設に?
TORANOGATE(トラノゲート)がどのような施設になるのか見ていきます。

| 29階 | ルーフトップガーデン・ラウンジ |
| 6階~28階 | オフィス |
| 2階~5階 | イノベーション施設 |
| 地下1階~2階 | 商業施設 |
高層階はオフィス
高層階(6階~28階)はオフィスフロアとなります。

東京メトロ銀座線虎ノ門駅に直結という立地の良さから、様々な企業から引き合いがあることが予想されますね。

各階のバルコニーには小川が流れるほか、29階には屋上庭園が設けられるなど、都心・オフィスにいながら自然を感じられるようになっています。
低層階は商業施設
低層階(地下1階~2階)は商業施設となります。

駅の利用者やオフィス利用者のニーズに合わせた店舗が出店するものと思われます。

1階にはパサージュが設けられ、開放的な空間となります。

こちらはおそらく地下1階の様子です。2025年2月に公開された最新のイメージ図では内装のイメージ図が明らかになり、フードホールの文字が。出店が確定したわけではありませんが、このような雰囲気になりますね。
ビジネスエリアの中枢で安心して寛げる商いの場を目指すとのことです。
商業施設のフロアは?
商業施設もフロアについてみていきます。
地下1階

地下1階はワーカーたちが気軽に集まれる、カジュアルフロアとなり、8店舗が出店します。
虎ノ門駅とも直結した、形となりますね。
1階

1階は国内外有名店や地元の逸品が揃うシンボル的フロアとなります。8店舗が出店予定となっています。
国内外の有名店が出店するフロアということで有力なブランド店や集客力の高いテナントが配置される可能性が高いですね。
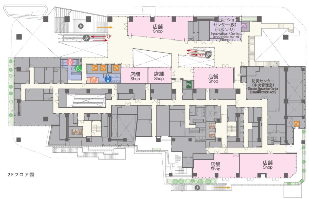
2階

2階は都心の地産地消・寛ぎの時間を叶える飲食店フロアとなります。
6店舗が出店します。図面右下の2区画は屋外階段からもアクセスできるようになっていますね。
TORANOGATE(トラノゲート)のテナントは?
2026年1月11日現在、求人誌等からテナントは明らかになっていません。
2027年6月竣工予定なので、早くて2027年初頭以降に明らかになってきそうですね。
また明らかになり次第更新します。
港区の求人情報もチェック
港区の求人情報もクリックだけで簡単検索できます。

ポイ活始めるなら今!気軽に稼ぎたい方におすすめ!
国内最大手ポイントサイト「moppy(モッピー)」でスキマ時間に月1万円以上稼ごう!

TORANOGATE(トラノゲート)の開業日は?
計画では2027年6月竣工予定となっています!
TORANOGATE(トラノゲート)の地図(場所・アクセス)
場所は虎ノ門駅前のエリア。虎ノ門東洋ビルなどがある区画です。









